Helping you to find your perfect
park & caravan holiday home

No. 1 dealer in North Wales & Cheshire

New 2026 Carnaby Oakdale2 bedrooms 37 x 12 feet

This is a Factory Special Order Caravan

2026 Carnaby Oakdale Static Caravan Holiday Home exterior
New 2026 Carnaby Oakdale 2 bedrooms 37 x 12 feet (Sleeps 4/6)This is a Factory Special Order CaravanFROM £53,962.16
Caravan Description

The 2026 Carnaby Oakdale is a stylish and contemporary holiday home designed with modern living in mind. Combining smart design with a warm, inviting feel, it’s an ideal choice for anyone looking to enjoy comfortable, hassle-free breaks away.

Step inside and you’re greeted by a spacious open-plan living area, enhanced by large windows that flood the space with natural light. The sleek, freestanding furniture creates a relaxed, modern atmosphere, while subtle design touches throughout give the Oakdale a real sense of quality and comfort.

Features
  • Painted chassis with pre-galvanised legs
  • Bay window with panoramic windows
  • Exterior light
  • Available with optional Ultra Warm upgrade
  • Carnaby crafted media unit with space for up to 55" TV
  • Comfortable ‘Carnaby Sit’ sprung corner sofa with matching scatter cushions
  • Freestanding dining table and fully upholstered dining chairs
  • Feature dinette pendant light
  • USB charging sockets in lounge
  • Wall mounted TV point
  • Coffee table with two fully upholstered stools
  • Electric fan assisted oven
  • Four burner gas hob
  • Externally vented Extactor Hood
  • Vinyl wrapped shaker effect cabinet doors
  • Integrated fridge/freezer
  • Textured resin sink and matching mixer tap
  • Venetian blind
  • Dividing door to hallway
  • Coordinated upholstered headboards
  • Bedside reading lights to the main bed
  • Wardrobes with integral drawers and bedside tables to all bedrooms
  • Dresser with mirror and stool to master bedroom
  • Carnaby Comfort Mattresses
  • Sculpted counter top wash basins with vanity units
  • Extractor fan to shower bathroom
  • Heated towel rail to shower bathroom* (*within the Ultra Warm upgrade)
Options/Additions Included
  • Ultra warm pack
  • Full galvanised chassis
  • TV points & booster to all bedrooms
  • Microwave
Caravan Photo Gallery
 
2026 Carnaby Oakdale Static Caravan Holiday Home exterior
2026 Carnaby Oakdale Static Caravan Holiday Home lounge
 
2026 Carnaby Oakdale Static Caravan Holiday Home living area coffee table
2026 Carnaby Oakdale Static Caravan Holiday Home TV
 
2026 Carnaby Oakdale Static Caravan Holiday Home dining area
2026 Carnaby Oakdale Static Caravan Holiday Home shower room
 
2026 Carnaby Oakdale Static Caravan Holiday Home twin bedroom
2026 Carnaby Oakdale Static Caravan Holiday Home main bedroom wardrobe
 
2026 Carnaby Oakdale Static Caravan Holiday Home main bedroom
2026 Carnaby Oakdale Static Caravan Holiday Home main bedroom vanity area
 
2026 Carnaby Oakdale Static Caravan Holiday Home shower room

FROM £53,962.16

Sleeps 4/6

Looking for a caravan park? Let Lloyds Caravan & Lodge Sales help you choose your perfect park!
Find my Perfect Park Add to Favourites Print Details Request Viewing

New 2026 Carnaby Oakdale FROM £53,962.16

37 x 12 feet 2 bedrooms (sleeps 4/6)

Factory Special Order

Caravan Description

To arrange a viewing of this caravan or to discuss ordering and specifications please click through to our enquiry form using the buttons to the right.

The 2026 Carnaby Oakdale is a stylish and contemporary holiday home designed with modern living in mind. Combining smart design with a warm, inviting feel, it’s an ideal choice for anyone looking to enjoy comfortable, hassle-free breaks away.

Step inside and you’re greeted by a spacious open-plan living area, enhanced by large windows that flood the space with natural light. The sleek, freestanding furniture creates a relaxed, modern atmosphere, while subtle design touches throughout give the Oakdale a real sense of quality and comfort.

Features

  • Painted chassis with pre-galvanised legs
  • Bay window with panoramic windows
  • Exterior light
  • Available with optional Ultra Warm upgrade
  • Carnaby crafted media unit with space for up to 55" TV
  • Comfortable ‘Carnaby Sit’ sprung corner sofa with matching scatter cushions
  • Freestanding dining table and fully upholstered dining chairs
  • Feature dinette pendant light
  • USB charging sockets in lounge
  • Wall mounted TV point
  • Coffee table with two fully upholstered stools
  • Electric fan assisted oven
  • Four burner gas hob
  • Externally vented Extactor Hood
  • Vinyl wrapped shaker effect cabinet doors
  • Integrated fridge/freezer
  • Textured resin sink and matching mixer tap
  • Venetian blind
  • Dividing door to hallway
  • Coordinated upholstered headboards
  • Bedside reading lights to the main bed
  • Wardrobes with integral drawers and bedside tables to all bedrooms
  • Dresser with mirror and stool to master bedroom
  • Carnaby Comfort Mattresses
  • Sculpted counter top wash basins with vanity units
  • Extractor fan to shower bathroom
  • Heated towel rail to shower bathroom* (*within the Ultra Warm upgrade)

Options/Additions Included with this Caravan

  • Ultra warm pack
  • Full galvanised chassis
  • TV points & booster to all bedrooms
  • Microwave

Size, Floor Plan & Pricing

Length: 37 feet
Width: 12 feet
Bedrooms: 2 (sleeps 4/6)

Price: FROM £53,962.16

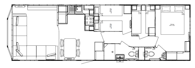
Caravan Floor Plan / Layout

2026 Carnaby Oakdale 37ft x 12ft 2 bedroom Static Caravan Holiday Home

Other Options

Other versions of this caravan are available:

2026 Carnaby Oakdale 35ft x 12ft 2 bedroom Static Caravan Holiday Home f
New Factory Special Order Carnaby Oakdale 2026 35 x 12 feet 2 Bedrooms (sleeps 4/6) FROM POA
2026 Carnaby Oakdale 36ft x 12ft 3 bedroom Static Caravan Holiday Home
New Factory Special Order Carnaby Oakdale 2026 36 x 12 feet 3 Bedrooms (sleeps 6/8) FROM POA
2026 Carnaby Oakdale 36ft x 12ft 3 bedroom Static Caravan Holiday Home factory (null)
New Factory Special Order Carnaby Oakdale 2026 36 x 12 feet 3 Bedrooms (sleeps 6/8) FROM POA
2026 Carnaby Oakdale 38ft x 12ft 3 bedroom Static Caravan Holiday Home
New Factory Special Order Carnaby Oakdale 2026 38 x 12 feet 3 Bedrooms (sleeps 6/8) FROM POA
2026 Carnaby Oakdale 37ft x 12ft 2 bedroom Static Caravan Holiday Home
New Lloyds Caravans, Towyn Graphite windows and Timberwolf premier panels Carnaby Oakdale 2026 37 x 12 feet 2 Bedrooms (sleeps 4/6) £55,044.97

Warranty & Aftercare Information

Lloyds Caravan & Lodge Sales are a trusted name in the industry with an excellent reputation for after sales care and customer service, and with over 50 years’ experience in the industry you can be sure that if you need us for anything, before, during or after your purchase – we are here to help!

All new holiday homes come with at least a 12 months manufacturer’s warranty from the date of purchase giving you peace of mind. Some holiday homes also carry a structural and even a corrosion warranty that can last up to 10 or 12 years!

CARNABY WARRANTY

1ST YEAR:

12 months warranty on parts and labour from the date of purchase of the first owner.

2 YEAR WARRANTY:

Enjoy an additional 12 months warranty on:

  • Boilers
  • Fridge/freezers and dishwashers
  • Electric fires
  • Electric sockets and switches
  • Televisions
  • Free standing furniture
  • Taps
  • Washbasins and sanitary ware
  • Radiators and towel rails
  • Kitchen sink
  • Interior door handles
  • Gutters, downpipes and cladding
  • Windows and exterior doors
  • Roof and standard steel chassis
  • Walls, ceilings and floors
  • Carpets and lino
  • Fully galvanised chassis

3 YEAR WARRANTY:

Enjoy a further 24 months cover for all of the above except the boilers.

5 YEAR WARRANTY:

Carnaby Caravans offers 5 years on the following items:

  • Windows and exterior doors
  • Roof and standard steel chassis
  • Walls, ceilings and floors
  • Carpets and lino
  • Fully galvanised chassis

10 YEAR WARRANTY:

Fully galvanised chassis systems are covered by a 10 year warranty.

Information true as of August 2023. Warranty covers are subject to certain terms, conditions and exclusions depending on each manufacturer. Please contact us if you require further information. Warranty only applies to the first owner of the holiday home and is not transferable. And the warranty takes effect from the date of purchase and ownership of holiday home.

Delivery Information

Transport Delivery Dates

Depending on when you want your new caravan holiday home delivered by and the delivery dates available, we at Lloyds Caravan & Lodge Sales will liaise with your chosen park and arrange for your new holiday home to be ready for when you need it.

Transport Delivery Costs

Holiday homes which are on display at our showground will include the delivery cost from factory to showground in the window price of the caravan; but you will have to pay extra for delivery from our showground to your chosen park, and is dependent on location. Please enquire.

Holiday homes which are already sited at a Caravan Park will include the delivery cost from the factory to the Caravan Park, in the window price of the Caravan that is for sale at the park.

If you are special ordering direct from the manufacturers the delivery charge from factory to Caravan Park varies depending on location, so please enquire.

Please note

  • Some Caravans fall into the category for a special license because of their width, so please check prices
  • Delivery dates are given in good faith but are not guaranteed and no liability will be accepted for any expenses or losses suffered by the buyer as a result of failure to meet any such date.

Enquiry

To enquire about this caravan please click the button below:

Enquire Now

Important note:

This caravan is a factory special order. It can be ordered in standard specification or customised as the manufacturer allows. Please use the Enquire tab to contact us to discuss your requirements.

Subject to availability

Caravans shown are for illustrative purposes only. Price shown is the standard retail price, options and transport costs are extra.

Lloyds Caravan & Lodge Sales may alter products, services and prices, described in the web site, at any time without notice.

Sign-up for News & Offers
Lloyds Caravan & Lodge Sales01745 832050[email protected]Printed 21/04/2026 02:46. Information correct at time of printing.